Wir bieten Ihnen eine solide und nachhaltig vermietete 3-Zimmer-Wohnung im beliebten Augsburger Stadtteil Pfersee an, die sich sowohl als stabile Kapitalanlage als auch als wertbeständige Investition in gefragter Wohnlage eignet.
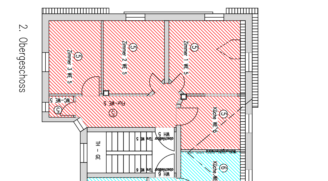
Die Wohnung überzeugt durch eine funktionale und klassische Raumaufteilung. Das Wohnzimmer bildet den Mittelpunkt der Einheit und bietet ausreichend Platz für einen gemütlichen Wohn- und Essbereich. Zwei weitere Zimmer eignen sich ideal als Schlafzimmer, Kinderzimmer oder Homeoffice. Damit spricht die Wohnung eine breite Zielgruppe an – von Paaren bis hin zu kleinen Familien.
Die Küche ist separat angeordnet und sorgt für eine klare Raumstruktur. Das Badezimmer ist zweckmäßig ausgestattet. Insgesamt befindet sich die Einheit in einem gepflegten Zustand und bietet eine solide Grundlage für eine nachhaltige Vermietung.
Gerade 3-Zimmer-Wohnungen dieser Größe sind am Standort besonders gefragt und gelten als langfristig gut vermietbar.
Die Wohnung ist aktuell vermietet und erzielt folgende Einnahmen:
•Kaltmiete: 540,00 € monatlich
•Warmmiete: 700,00 € monatlich
Damit bietet die Einheit eine stabile Einnahmesituation mit weiterem Entwicklungspotenzial im Rahmen der gesetzlichen Möglichkeiten. Für Kapitalanleger ergibt sich hier eine interessante Kombination aus Sicherheit und Perspektive.
Haus & Rahmenbedingungen
Das Objekt wird im Zuge eines Aufteilungsgeschäfts vollständig in einzelne Eigentumswohnungen veräußert. Sämtliche Einheiten im Haus stehen zum Verkauf – sowohl einzeln als auch im Paket für Investoren.
Eckdaten zum Gebäude:
•Energieklasse D
•Zentralheizung mit Erdgas
•Jede Wohnung verfügt über ein eigenes Kellerabteil
•Gemeinschaftlich nutzbare Gartenfläche
•Gepflegter Gesamtzustand des Hauses
Im Rahmen der Aufteilung bestehen derzeit keine gebildeten Rücklagen. Das Gebäude wurde jedoch regelmäßig instand gehalten und befindet sich insgesamt in einem sauberen, ordentlichen Zustand.
Die Wohnungen im Haus weisen unterschiedliche Mietniveaus und Substanzqualitäten auf, befinden sich jedoch mindestens in gepflegtem Zustand. Teilweise werden Einheiten auch leerstehend angeboten, wodurch sich zusätzliche strategische Möglichkeiten ergeben.
Stellplätze & Garagen
Optional können erworben werden:
•Außenstellplatz: 7.500 €
•Einzelgarage: 20.000 €
Aktuell stehen drei Außenstellplätze sowie zwei Garagen zur Verfügung.
Investmentperspektive
Diese 3-Zimmer-Wohnung eignet sich ideal für Kapitalanleger, die:
✔ eine bewährte Wohnungsgröße mit stabiler Nachfrage suchen
✔ von einem etablierten Standort in Augsburg-Pfersee profitieren möchten
✔ mehrere Einheiten innerhalb eines Hauses erwerben wollen
Durch die Kombination aus Lage, Vermietung und Aufteilungsperspektive bietet diese Einheit eine nachhaltige Investitionsmöglichkeit.
Lagebeschreibung
Die Immobilie befindet sich in der Eberlestraße 36 im beliebten Augsburger Stadtteil Pfersee, einem gewachsenen und stark nachgefragten Wohngebiet der Stadt Augsburg.
Pfersee zählt seit Jahren zu den bevorzugten Wohnlagen innerhalb Augsburgs. Der Stadtteil verbindet urbanes Leben mit ruhiger Wohnatmosphäre und überzeugt durch eine sehr gute Infrastruktur sowie kurze Wege in die Innenstadt.
Infrastruktur & Nahversorgung
Sämtliche Einrichtungen des täglichen Bedarfs befinden sich in unmittelbarer Umgebung. Supermärkte, Bäckereien, Apotheken, Ärzte sowie weitere Einkaufsmöglichkeiten sind fußläufig erreichbar. Auch Cafés, Restaurants und kleinere Geschäfte prägen das gewachsene Umfeld und sorgen für eine hohe Wohnqualität.
Familien profitieren von einer guten Auswahl an Kindergärten, Schulen sowie Spiel- und Freizeitmöglichkeiten im näheren Umkreis.
Verkehrsanbindung
Die Verkehrsanbindung ist hervorragend. Mehrere Bus- und Straßenbahnlinien sorgen für eine schnelle und direkte Verbindung in die Augsburger Innenstadt sowie zum Hauptbahnhof. Von dort aus bestehen optimale Anschlussmöglichkeiten in Richtung München und Ulm.
Auch mit dem Auto ist die Immobilie ideal angebunden: Über die nahegelegenen Hauptverkehrsachsen sind sowohl die B17 als auch die Autobahn A8 zügig erreichbar. Dadurch eignet sich der Standort auch für Berufspendler.
Freizeit & Erholung
Pfersee bietet zudem einen hohen Freizeitwert. Grünflächen, Spazierwege entlang der Wertach sowie Sport- und Freizeitangebote befinden sich in der näheren Umgebung. Die Kombination aus urbaner Nähe und naturnahem Erholungsangebot macht diesen Stadtteil besonders attraktiv.
Standortqualität & Entwicklung
Augsburg gehört zu den wirtschaftsstarken Regionen Bayerns und profitiert von einer kontinuierlich positiven Bevölkerungsentwicklung. Die Nachfrage nach Wohnraum – insbesondere in etablierten Stadtteilen wie Pfersee – ist seit Jahren stabil hoch.
Gerade im Rahmen eines Aufteilungsgeschäfts stellt dieser Standort eine nachhaltige Investition dar. Die Kombination aus guter Vermietbarkeit, solider Infrastruktur und gewachsenem Wohnumfeld sorgt für langfristige Perspektiven – sowohl für Kapitalanleger als auch für Eigennutzer.
um deine Lieblingshäuser und mehr zu speichern
Sie haben noch kein Konto? Bitte melden Sie sich an
Geben Sie Ihre E-Mail-Adresse ein und wir senden Ihnen einen Link zum Ändern Ihres Passworts.